Weinheim:
Reihenmittelhaus mit Garten und TG-Stellplatz
Objekt-Nr.: 553

Hauseingang

Reihenmittelhaus

Flur mit Gäste-WC

Flur und Küche

Küche

Wohnzimmer und Treppe nach oben

Wohnzimmer

Balkon im Obergeschoss

Ausblick vom Balkon

Hausansicht von hinten

Blick auf den Garten

mit kleinem Vorgarten

umzäuntes Gartengrundstück

Häuserzeile im ruhigen Wohngebiet

Querschnitt

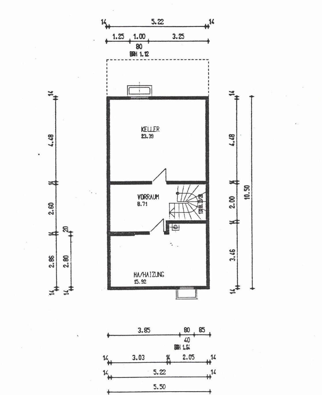
Kellergeschoss

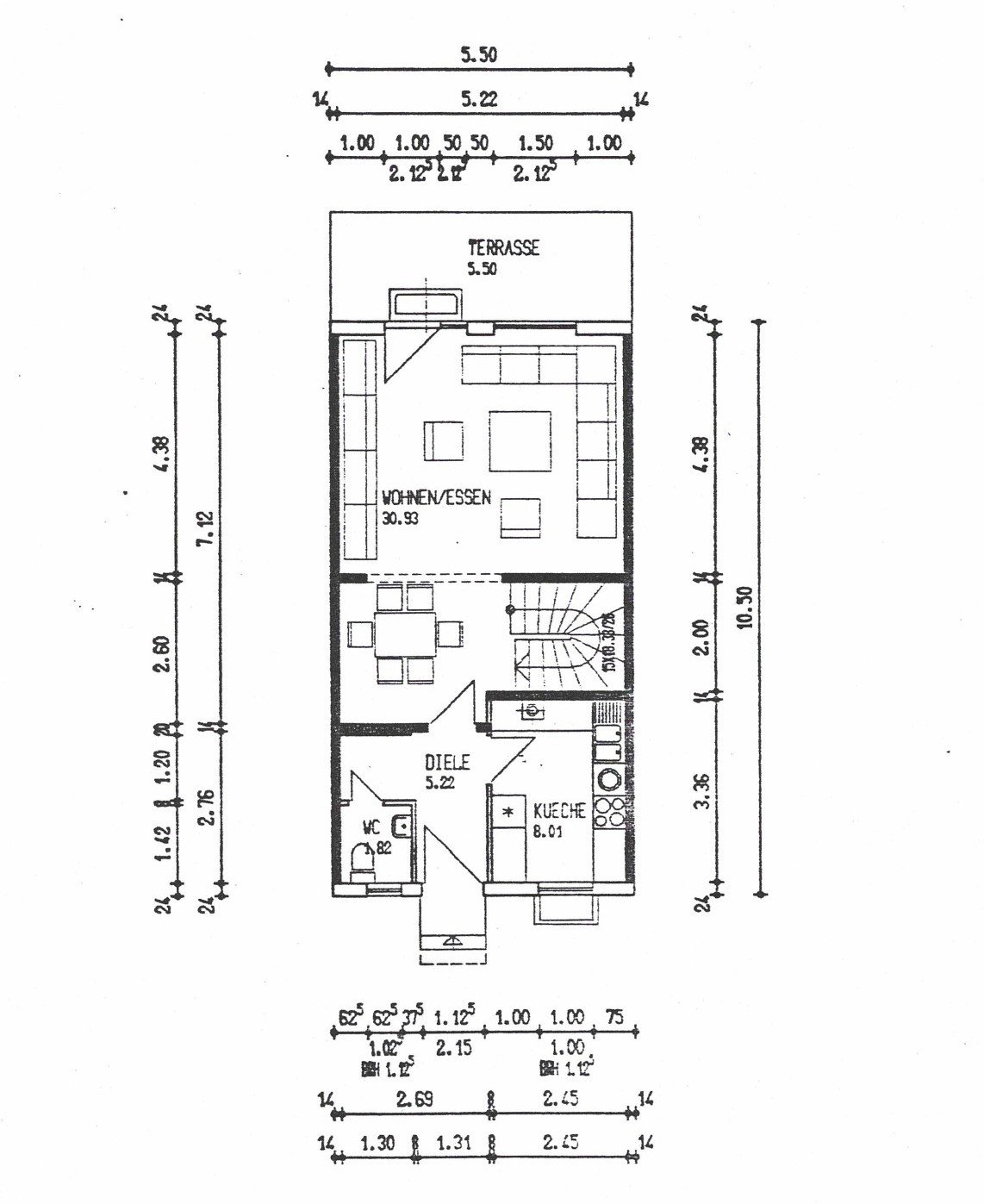
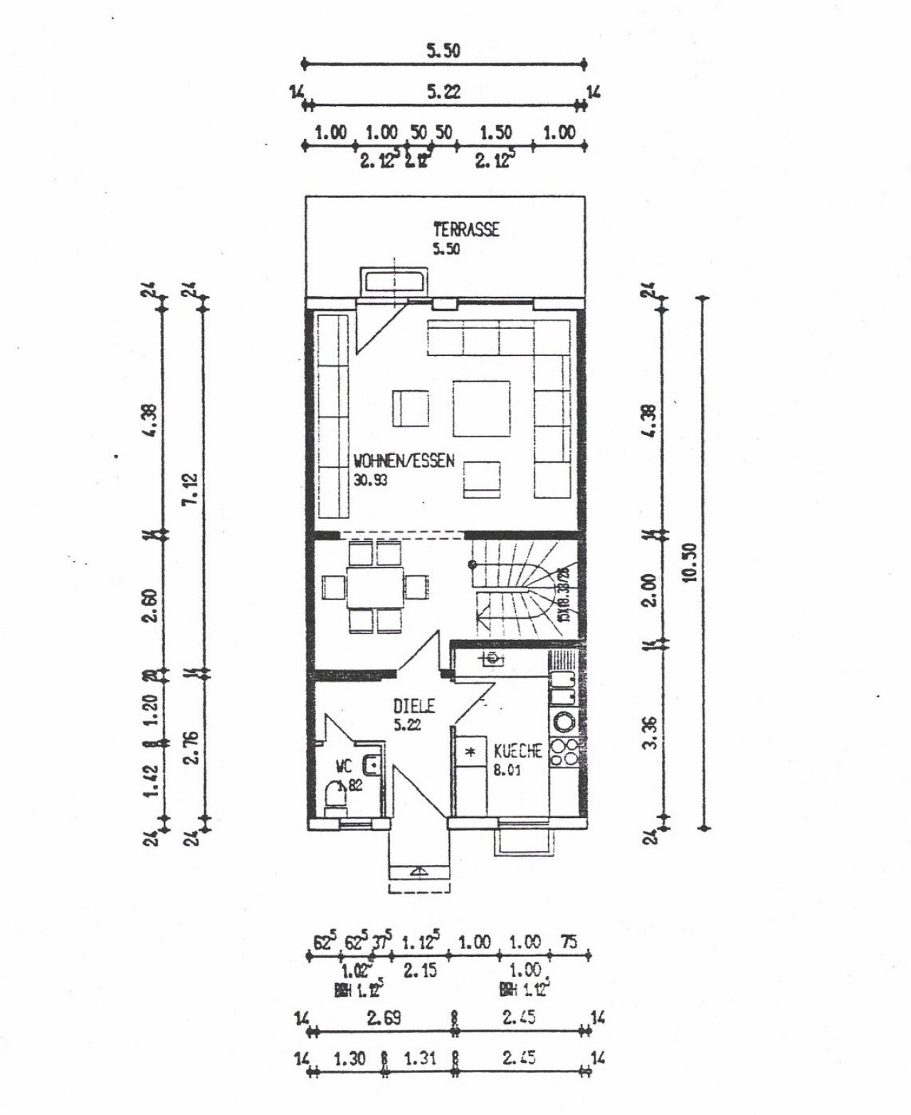
Erdgeschoss

Obergeschoss

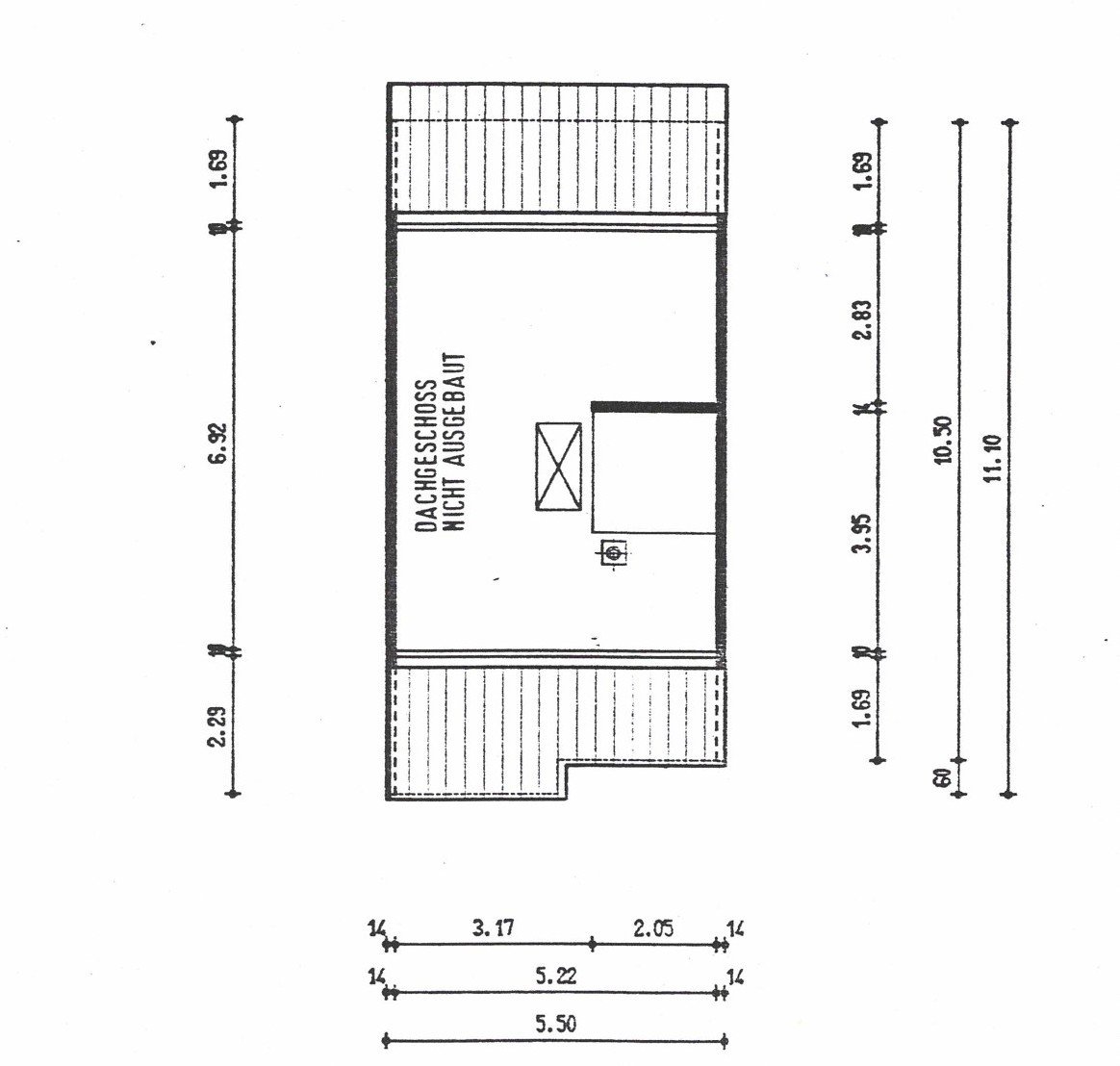
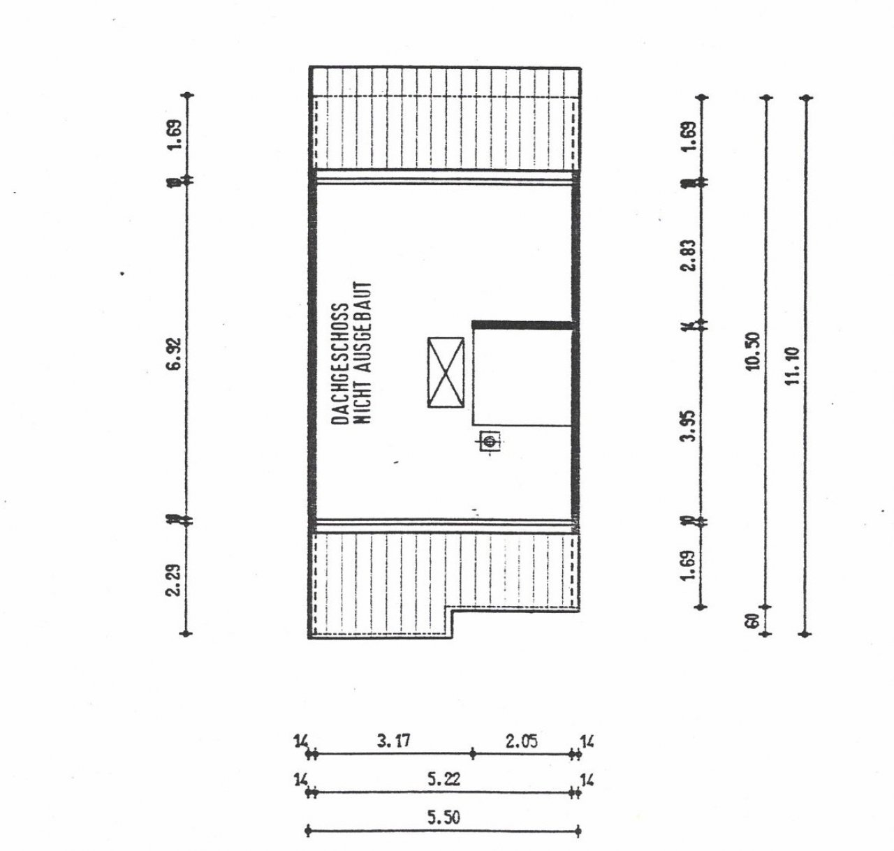
ausbaubares Dachgeschoss



















Preis:
309.000 €
Wohnfläche ca.:
100 m²
Grundstück ca.:
151 m²
Zimmeranzahl:
4
Dieses Reihenmittelhaus mit Garten bietet mit seinen 4 Zimmern und einer Wohnfläche von ca. 100 m² eine einladende Atmosphäre für junge Familien.
Das Haus wurde auf einem ca. 151 m² großen Erbbaugrundstück erbaut. Die jährliche Erbpacht beträgt derzeit € 1.063,08 (Erbbaurecht dauert bis 31.03.2085).
In einem familienfreundlichen und dennoch ruhigem Wohngebiet der Weinheimer Weststadt erreichen Sie das Haus über einen gepflegten Fußweg. Im Erdgeschoss befinden sich die Küche, das Gäste-WC mit Fenster und der Flur für Ihre Gardarobe sowie das große offen gestaltete Wohnzimmer mit Essbereich. Von hier aus haben Sie auch Zugang zur Terrasse und in den Garten mit sonniger Südausrichtung. Ein großes Elternschlafzimmer, zwei mögliche Kinderzimmer und das innenliegende Bad mit Badewanne, Dusche und WC befinden sich im Obergeschoss des Hauses. Beide Kinderzimmer haben Zugang zum modernisierten Balkon. Weiteren Wohnraum können Sie mit dem Ausbau vom Dachgeschoss schaffen. Zudem ist das Haus voll unterkellert und bietet mit zwei großen Räumen ausreichend Platz für Stauraum und Hobbies. Ein kleiner Vorgarten mit individueller Gestaltungsfreiheit gegenüber des Hauseinganges vervollständigt das tolle Angebot.
Das Haus ist derzeit vermietet und erzielt eine monatliche Kaltmiete von € 1.120,50.- . Aus Diskretionsgründen werden daher keine weiteren Innenaufnahmen veröffentlicht. Gerne zeigen wir Ihnen die Räumlichkeiten im Besichtigungstermin.
Bad: Dusche, Wanne, Fenster
Anzahl Schlafzimmer: 3
Anzahl Badezimmer: 1
Balkon: 1
Terrasse: 1
Gäste-WC: ja
Garten: ja
Dachboden: ja
Keller: voll unterkellert
vermietet: ja
Anzahl der Parkflächen: 1
Anzahl der Parkflächen: 1 x Tiefgarage
Letzte Modernisierung/ Sanierung: 2022
Baujahr: 1987
Bodenbelag: PVC
Heizung: Zentralheizung
Energieausweistyp: Verbrauchsausweis - gültig vom 29.10.2023 bis 28.10.2033
Energieeffizienz-Klasse: C
Baujahr laut Energieausweis: 1987
Das könnte Ihnen auch gefallen
69469 Weinheim















































































