Weinheim:
Stilvolles 3-Familienhaus mit zusätzlichem (Bau) - Grundstück
Objekt-Nr.: 243 (1/243)

Hausansicht

Eingangstür

Wohnungstüren

EG_Wohnzimmer

EG_Küche zum Bad

EG_Schlafzimmer

Treppenhaus

OG_Wohnzimmer

Badezimmer OG

OG_Küche zum Bad

Balkon im 1. Obergeschoss

Ausblick vom DG

DG Eingangsbereich

DG_Zimmer

DG Zimmer

DG_AufteilungZimmer

Keller

Garten bzw. separates (Bau)Grundstück

Hausansicht_

Keller

EG

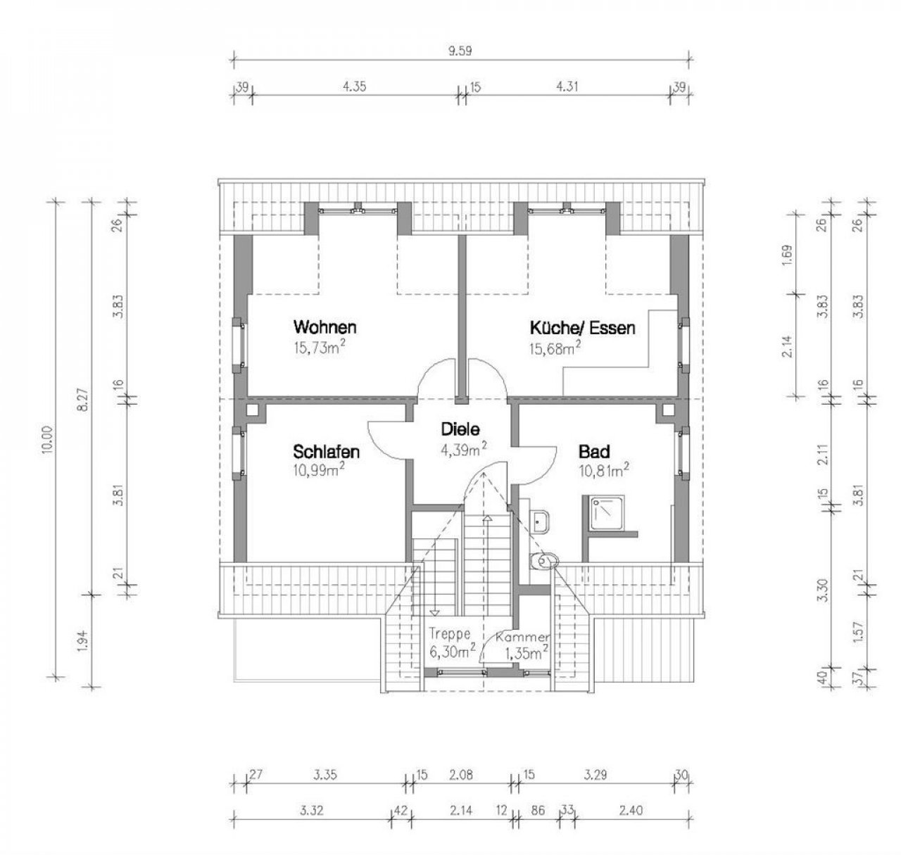
OG

DG























Preis:
695.000 €
Wohnfläche ca.:
181 m²
Grundstück ca.:
423 m²
Zimmeranzahl:
9
Wir freuen uns, Ihnen dieses stilvolle und freistehende 3-Familienhaus vorstellen zu dürfen, das im Jahr 1912 erbaut wurde. Das Haus beeindruckt mit seinem einzigartigen historischen Charme, gepaart mit modernem Komfort und vielseitigen Nutzungsmöglichkeiten. Es besteht aus drei großzügigen und gut geschnittenen 3-Zimmer-Küche-Bad-Wohnungen und erstreckt sich über eine Gesamtwohnfläche von ca. 181 m². Das Grundstück hat eine Größe von 423 m² und bietet zusätzliches Potenzial für Erweiterungen. Die Erd- und Obergeschosswohnung sind derzeit vermietet, während die Dachgeschosswohnung bezugsfrei ist. Das Haus ist voll unterkellert und begeistert mit teilweise originalen Dielenböden und Zimmertüren sowie einer Deckenhöhe von großzügigen 3 Metern.
Das Haus besticht durch seinen historischen Charme mit teilweise originalen Dielenböden und Zimmertüren, die eine warme und einladende Atmosphäre schaffen. Die großzügige Deckenhöhe von 3 Metern verleiht den Räumen ein luftiges und großzügiges Raumgefühl. Das Grundstück bietet zudem die Möglichkeit einer Erweiterung, sodass Sie Ihren individuellen Wohntraum verwirklichen können.
Das Haus ist voll unterkellert, was zusätzlichen Stauraum und Platz für verschiedene Nutzungsmöglichkeiten bietet. Die vermieteten Wohnungen erzeugen solide Mieteinnahmen, während die bezugsfreie Dachgeschosswohnung Raum für persönliche Gestaltungsideen bietet.
Haustyp: Mehrfamilienhaus
Etagenanzahl: 3
Provisionspflichtig: ja
Provision: Die Käufer-Provision beträgt 3,57% inkl. MwSt. vom
Nutzfläche ca.: 54,18 m²
Bad: Dusche, Fenster
Anzahl Badezimmer: 3
Balkon: 1
Dachboden: ja
Keller: voll unterkellert
vermietet: ja
Baujahr: 1912
Bodenbelag: Dielen, Laminat
Zustand: gepflegt
Befeuerungsart: Gas
Energieausweistyp: Bedarfsausweis
Energieeffizienz-Klasse: G
Baujahr laut Energieausweis: 1912
Bei Abschluss eines Kaufvertrages wird eine Vermittlungs-/ Nachweisprovision in Höhe von 3,25 % inklusive 19 % Mehrwertsteuer auf den Kaufpreis vom Käufer fällig.
Die von uns gemachten Informationen beruhen auf Angaben des Verkäufers bzw. der Verkäuferin. Für die Richtigkeit und Vollständigkeit der Angaben kann keine Gewähr bzw. Haftung übernommen werden. Ein Zwischenverkauf und Irrtümer sind vorbehalten.
Wir weisen auf unsere Allgemeinen Geschäftsbedingungen hin. Durch weitere Inanspruchnahme unserer Leistungen erklären Sie die Kenntnis und Ihr Einverständnis.
Das könnte Ihnen auch gefallen
Seltene Gelegenheit!
69469 Weinheim















































