Weinheim:
Haus sucht Familie
Objekt-Nr.: 000006

Rückansicht des Hauses

Flurbereich Erdgeschoss

Blick in die Küche

Küche

Wohnzimmer mit Kamin

Wohnebene Erdgeschoss

Flurbereich Obergeschoss

Schlafzimmer OG mit Balkon

Balkon mit Aussicht im OG

Zimmeraufteilung OG

Tageslichtbad

Treppenaufgang ins Dachgeschoss

mit Speicher

Studio im DG

Aussicht vom Dachgeschoss

Garten von oben

Terrasse und Garten in Südausrichtung

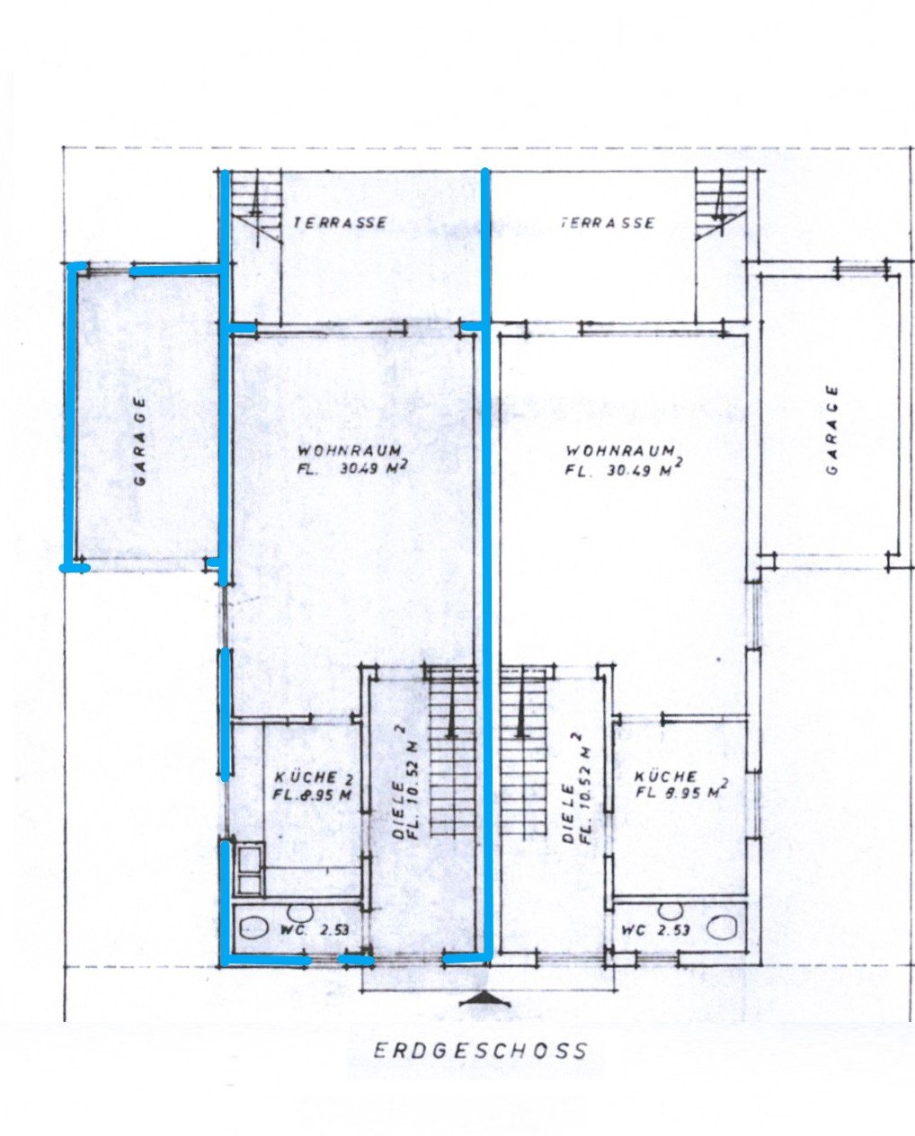
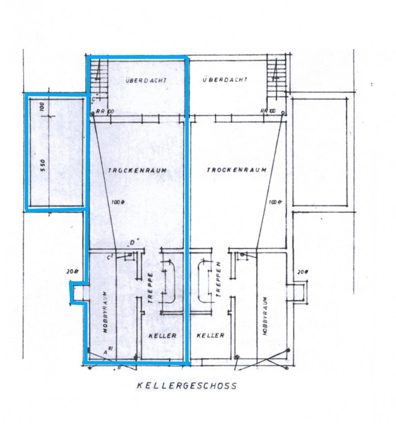
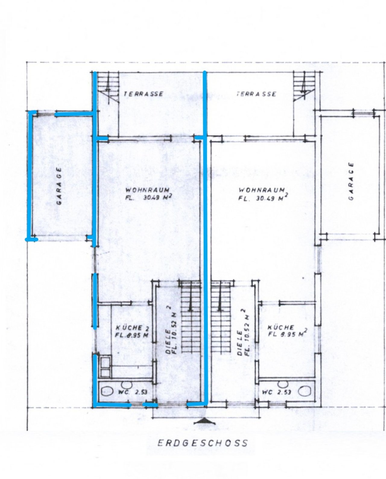
Kellergeschoss

Erdgeschoss

Obergeschoss

Dachgeschoss

Schnitt

Straßenansicht

Ansicht von Süden

Giebelansicht

























Preis:
595.000 €
Wohnfläche ca.:
130 m²
Grundstück ca.:
234 m²
Zimmeranzahl:
5
Diese gepflegte Doppelhaushälfte aus dem Jahr 1977 ist ein ideales Zuhause für Familien oder Paare mit Platzbedarf. Auf rund 130 m² Wohnfläche, verteilt auf insgesamt fünf Zimmer, bietet dieses Haus ein durchdachtes Raumkonzept und vielfältige Nutzungsmöglichkeiten.
Das Haus steht auf einem ca. 234 m² großen Grundstück und überzeugt durch eine angenehme Wohnatmosphäre. Der großzügige Wohnbereich mit Kaminofen bildet das Herzstück des Hauses und lädt zu gemütlichen Stunden ein. Die Südausrichtung sorgt für eine helle und freundliche Stimmung.
Im Obergeschoss befinden sich drei Schlafzimmer, ein Balkon sowie ein Tageslichtbad, ausgestattet mit Badewanne und Dusche. Das ausgebaute Dachgeschoss eröffnet weitere Nutzungsmöglichkeiten – ob als Homeoffice oder zusätzliches Schlafzimmer.
Der nach Süden ausgerichtete Garten bietet ideale Voraussetzungen für entspannte Stunden im Freien oder individuelle Gestaltungsideen.
Abgerundet wird dieses Angebot durch eine Garage, dich sich direkt neben dem Haus befindet.
Haustyp: Doppelhaushälfte
Provisionspflichtig: ja
Provision: Die Käufer-Provision beträgt 3,57% inkl. MwSt. vom
Küche: Einbauküche
Bad: Dusche, Wanne, Fenster
Anzahl Schlafzimmer: 3
Anzahl Badezimmer: 1
Balkon: 1
Terrasse: 1
Gäste-WC: ja
Garten: ja
Dachboden: ja
Kamin: ja
Keller: voll unterkellert
Anzahl der Parkflächen: 1
Anzahl der Parkflächen: 1 x Garage
Baujahr: 1977
Bodenbelag: Fliesen, Parkett
Zustand: gepflegt
Heizung: Zentralheizung
Befeuerungsart: Elektro
Energieausweistyp: Bedarfsausweis - gültig vom 07.04.2026 bis 06.04.2036
Energieeffizienz-Klasse: E
Baujahr laut Energieausweis: 1977
Das könnte Ihnen auch gefallen
2 Häuser - 1 Preis
69469 Weinheim





































































