Weinheim:
Tolle Lage - Tolle Wohnung - Toller Ausbilck
Objekt-Nr.: 550


Ausblick

Badezimmer

hochwertige Einbauschränke

Küche nah

Küchenzeile

Loggia

offene Wohnküche

Schlafzimmer

überblick 2

Wohnzimmer

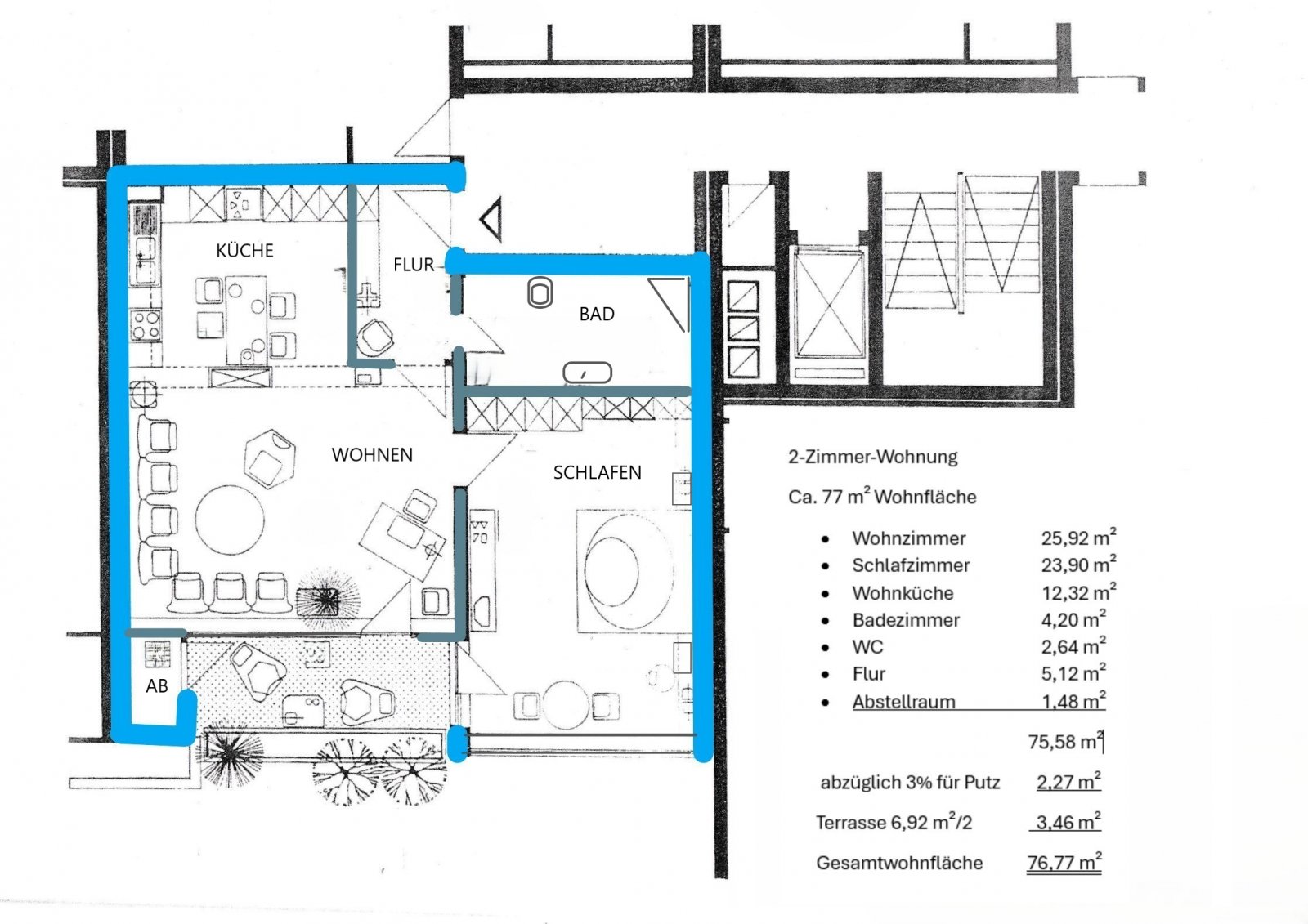
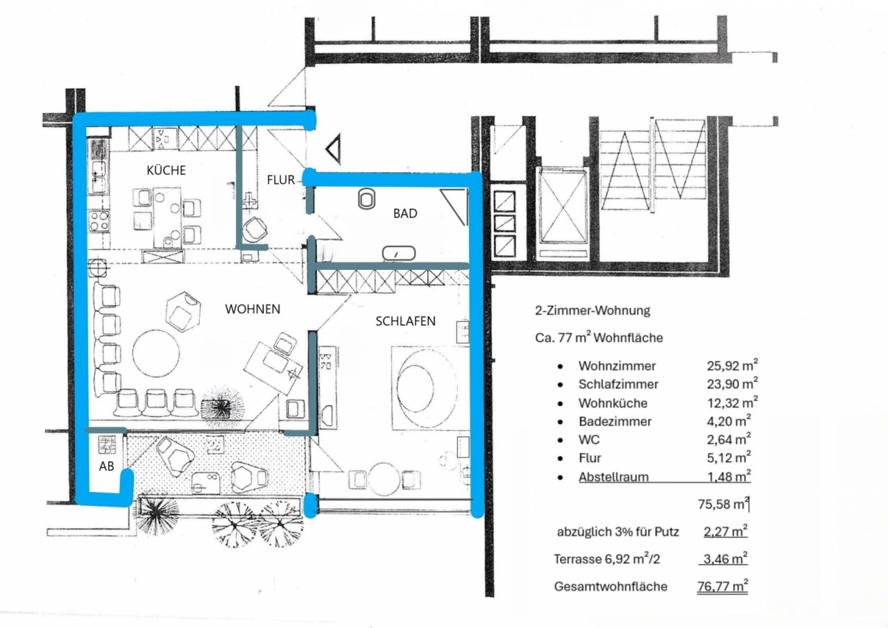
Grundriss mit Wohnfäche












Preis:
346.500 €
Wohnfläche ca.:
77 m²
Zimmeranzahl:
2
Fantastische Lage und herrlicher Ausblick
In begehrter Wohnlage, nur wenige Schritte vom Weinheimer Schlosspark entfernt, befindet sich diese großzügig geschnittene 2-Zimmer-Wohnung im 3. Obergeschoss eines gepflegten Mehrfamilienkomplexes. Die Wohnung ist komfortabel über das Treppenhaus oder bequem mit dem Aufzug erreichbar.
Bereits beim Betreten empfängt Sie ein einladender Flur mit praktischen Einbauschränken, der Sie direkt in den großzügigen Wohnbereich führt. Die offene Wohnküche ist stilvoll durch eine Massivholztheke vom Wohnraum separiert und fügt sich harmonisch in das Gesamtbild ein. Die sehr gepflegte Einbauküche wird durch einen gemütlichen Essbereich ergänzt und bietet ideale Voraussetzungen für entspanntes Kochen und Genießen.…
Großzügige Fensterfronten sorgen für eine helle und freundliche Atmosphäre und lassen sowohl den Wohn- als auch den Schlafbereich in natürlichem Licht erstrahlen. Im Schlafzimmer fügt sich ein hochwertiger, beleuchteter Einbauschrank perfekt in das Raumkonzept ein und bietet zusätzlichen Stauraum.
Ein besonderes Highlight dieser Wohnung ist die Loggia, die sowohl vom Wohn- als auch vom Schlafzimmer aus zugänglich ist. Hier genießen Sie zu jeder Tageszeit einen beeindruckenden Ausblick und können entspannte Stunden im Freien verbringen.
Das moderne Badezimmer überzeugt mit einer großzügigen Eckdusche, maßgefertigten Einbauten sowie ausgewählten Hochglanzfliesen und rundet das hochwertige Gesamtbild dieser Immobilie stimmig ab.
Die Wohnung ist seit 5 Jahren an einen solventen Mieter vermietet.
Wohnungstyp: Etagenwohnung
Etage: 3
Provisionspflichtig: ja
Provision: Die Käufer-Provision beträgt 3,57% inkl. MwSt. vom
Küche: Einbauküche
Bad: Dusche
Anzahl Schlafzimmer: 1
Anzahl Badezimmer: 1
Balkon: 1
Keller: ja
Fahrstuhl: ja
vermietet: ja
Anzahl der Parkflächen: 1
Anzahl der Parkflächen: 1 x Tiefgarage
Baujahr: 1975
Hausgeld: 285 €
Bodenbelag: Fliesen, Parkett
Zustand: gepflegt
Heizung: Zentralheizung
Befeuerungsart: Fernwärme
Energieausweistyp: Verbrauchsausweis - gültig vom 21.05.2019 bis 20.05.2029
Energieeffizienz-Klasse: F
Baujahr laut Energieausweis: 1975
Das könnte Ihnen auch gefallen
Dachgeschosswohnung mit Potenzial
69469 Weinheim









