Birkenau:
Ruhig und familienfreundlich! Reihenmittelhaus mit Garten und Stellplatz
Objekt-Nr.: 562

Herzlich Willkommen

Reihenmittelhaus in guter Lage

verkehrsberuhigte Anliegerstraße

Treppenaufgang zum Haus

mit freiem Blick vor dem Haus

Balkon im Obergeschoss vorne

Balkon im OG

Gartenblick

Rückansicht des Hauses

Garten mit Kellerzugang

gepflegte Grünfläche

Grundriss Keller

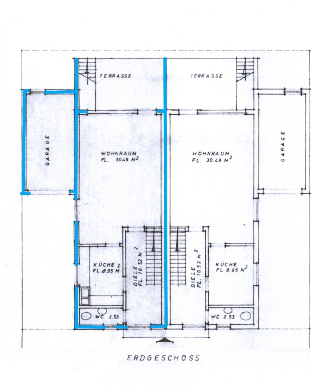
Grundriss Erdgeschoss

Grundriss Obergeschoss

Grundriss Dachgeschoss















Preis:
395.000 €
Wohnfläche ca.:
120 m²
Grundstück ca.:
221 m²
Zimmeranzahl:
4
Dieses gepflegte Reihenmittelhaus mit Garten überzeugt durch eine durchdachte Raumaufteilung sowie ein angenehm ruhiges Wohnumfeld. Das voll unterkellerte Haus wurde im Jahr 1987 auf einer Grundstücksfläche von ca. 221 m² erbaut. Die Wohnfläche von ca. 120 m² verteilt sich über zwei Etagen und bietet zusätzliches Ausbaupotential im Dachgeschoss.
Der Hauseingang befindet sich im Hochparterre und ist über wenige Treppenstufen erreichbar, was dem Haus eine leicht erhöhte und angenehme Wohnposition verleiht. Im Erdgeschoss finden Sie im Eingangsbereich die Garderobe sowie das Gäste-WC. Der angrenzende Treppenbereich verbindet sämtliche Etagen miteinander.…
Auf dieser Ebene befindet sich neben der separaten Küche mit Blick in den Garten auch das großzügige Wohn- und Esszimmer als Herzstück des Hauses. Von hieraus haben Sie direkten Zugang zur Terrasse und in den liebevoll angelegten Garten, welcher terrassenartig den Hang nach oben führt. Das Obergeschoss verfügt über drei gut geschnittene Schlafzimmer, die sich flexibel als Kinder-, Arbeits- oder Gästezimmer nutzen lassen. Hier finden Sie zudem ein Tageslichtbad, welches mit einer Badewanne und einer Dusche ausgestattet ist. Das Dachgeschoss ist über eine Dachklappentreppe im Flurbereich erreichbar. Aktuell wird der Dachboden als Speicher genutzt. Zudem ist das Haus voll unterkellert. Neben einer Waschküche, Geräteraum, und einem großen ausgebauten Hobbyraum mit Fenster (ca. 19 m²), bietet der Keller aussreichend Abstellfläche. Der Keller ist sowohl vom Vorderbereich des Hauses als auch vom Garten aus über eine Treppe zugänglich. Ein Außenstellplatz direkt vor der Haustür rundet dieses interessante Angebot ab.
In den Wohnebenen wird das Haus über Strom mittels einer Fußbodenheizung beheizt. Ausgestattet sind die Fußböden mit Vinylbelag und Fliesen. Im Jahr 2022 wurden sowohl Fenster, Terrassen- und Balkontüren, die Hauseingangstür und Kellertür als auch die Balkongeländer erneuert.
Die Immobilie mit Garten eignet sich sowohl für junge Familien als auch für Kapitalanleger. Da das Haus derzeit vermietet ist (monatliche Nettokaltmiete: € 1.000.-), werden aus Diskretionsgründen keine Innenaufnahmen veröffentlicht. Gerne zeigen wir Ihnen die Räumlichkeiten bei einem persönlichen Besichtigungstermin.
Haustyp: Reihenmittelhaus
Provisionspflichtig: ja
Provision: Die Käufer-Provision beträgt 3,57% inkl. MwSt. vom
Bad: Dusche, Wanne, Fenster
Anzahl Schlafzimmer: 3
Anzahl Badezimmer: 1
Balkon: 2
Terrasse: 1
Gäste-WC: ja
Garten: ja
Dachboden: ja
Keller: voll unterkellert
vermietet: ja
Anzahl der Parkflächen: 1
Anzahl der Parkflächen: 1 x Außenstellplatz
Letzte Modernisierung/ Sanierung: 2022
Baujahr: 1987
Bodenbelag: Fliesen, PVC
Zustand: gepflegt
Heizung: Fußboden
Befeuerungsart: Elektro
Energieausweistyp: Bedarfsausweis - gültig vom 30.11.2025 bis 29.11.2035
Energieeffizienz-Klasse: F
Baujahr laut Energieausweis: 1987
Das könnte Ihnen auch gefallen
2 Häuser - 1 Preis
Was für ein schönes Haus!
Haus sucht Familie
69488 Birkenau



















































































