Lorsch:
2 Häuser - 1 Preis
Objekt-Nr.: 548


Haupthaus mit Anbau

Hauseingang Haupthaus

Wohnzimmer mit Nebenraum im EG

Durchgangszimmer mit Nebenraum und Durchgang zum Anbau

Flur im OG

Badezimmer OG

Durchgangszimmer im OG

Küche mit Nebenraum im OG

Anbau am Haupthaus

Kriechkeller mit Gewölbe

separater Eingang in den Anbau

Kellerzugang im Haupthaus

Zimmer im Anbau

Badezimmer mit Dusche im Anbau

Flur im Anbau

Schlafzimmer im Anbau

Breite Hofeinfahrt

Nebengebäude

Carport

großer Garten

Hofeingang

2 Häuser 1 Preis

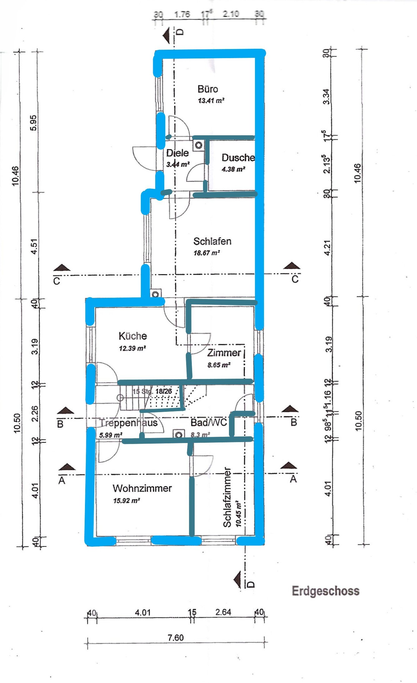
Erdgeschoss Haupthaus

Obergeschoss Haupthaus

Dachgeschoss Haupthaus

Kellergeschoss Nebengebäude

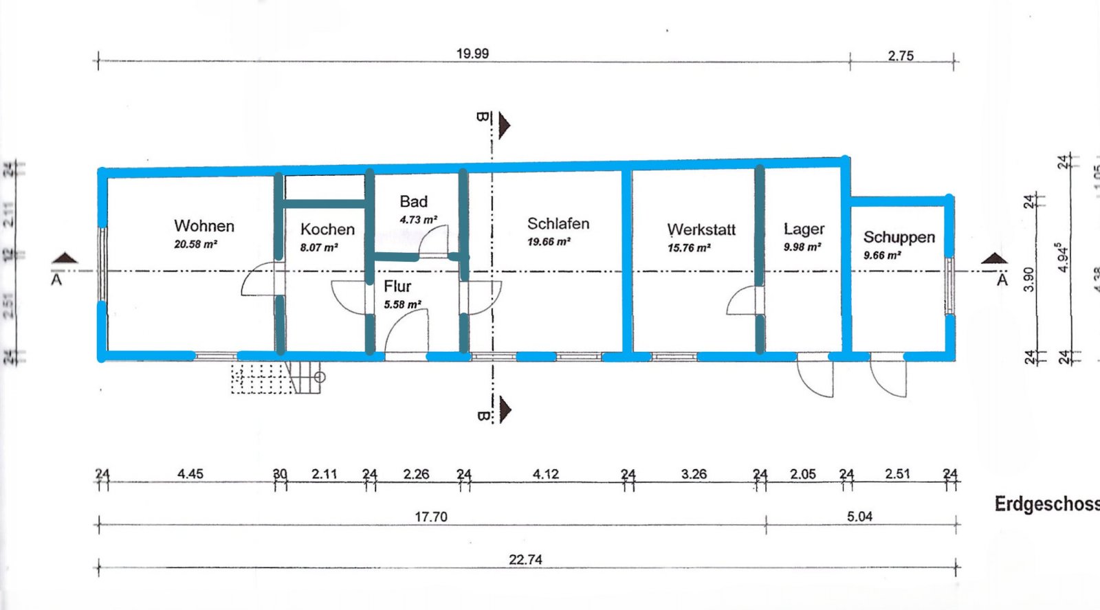
Erdgeschoss Nebengebäude

Dachboden Nebengebäude





























Preis:
495.000 €
Wohnfläche ca.:
203 m²
Grundstück ca.:
575 m²
Zimmeranzahl:
9
Hier erwerben Sie zwei separate Häuser auf einem ca. 575 m² großen Grundstück.
Das "Haupthaus" bietet vielfältige Nutzungsmöglichkeiten. Mit insgesamt 7 Zimmern und einer Wohnfläche von ca. 146 m² eignet sich die Immobilie sowohl für Eigennutzer mit Platzbedarf als auch für Kapitalanleger mit Weitblick. Das Baujahr ist nicht bekannt, könnte aber um 1900 erbaut worden sein. Die Aufstockung und Erweiterung düfte ab 1966 erfolgt sein.
Das Haus verfügt über 2 Hauseingänge sowie über 3 Bäder und 2 Küchen. Ein kleiner Kriechkeller (Gewölbe) rundet das Ganze ab.
Die Immobilie ist renovierungsbedürftig und bietet dadurch eine hervorragende Gelegenheit, individuelle Wohn- und Nutzungskonzepte nach eigenen Vorstellungen zu realisieren. Ob behutsame Modernisierung oder umfassende Sanierung – hier können Sie das volle Potenzial dieses Altbaus ausschöpfen.…
Das "Nebenhaus / Gebäude" ist vermietet (€ 380.-Kaltmiete) und verfügt mit 2 Zimmern über ca. 57 m² Wohnfläche. Auch hier ist das Baujahr nicht verifizierbar, ist aber vermutlich aus dem Jahr 1951. Zwei weitere Lagerräume / Werkstatt bieten weitere Nutzungsmöglichkeiten.
Beheizt werden beide Häuser über Elektronachtspeicheröfen.
Der großzügige Garten lädt zum Entspannen, Verweilen und kreativen Gestalten ein. Er bietet ausreichend Platz für Freizeitaktivitäten, Gartenliebhaber oder Familien mit Kindern. Der vorhandene Carport sorgt für komfortables Parken direkt auf dem Grundstück.
Dieses Gesamtanwesen mit den beiden Häusern eignet sich ideal für:
* Mehrgenerationenwohnen
* Kombination aus Eigennutzung und Vermietung
* Kapitalanlage mit Entwicklungspotenzial
* Wohnen und Arbeiten unter einem Dach
Haustyp: Mehrfamilienhaus
Provisionspflichtig: ja
Provision: Die Käufer-Provision beträgt 3,57% inkl. MwSt. vom
Anzahl Badezimmer: 3
Einliegerwohnung: ja
Garten: ja
Keller: voll unterkellert
Baujahr: 1900
Zustand: renovierungsbedürftig
Heizung: Zentralheizung
Befeuerungsart: Elektro
Energieausweistyp: Bedarfsausweis - gültig vom 13.01.2026 bis 12.01.2036
Energieeffizienz-Klasse: H
Baujahr laut Energieausweis: 1900
Das könnte Ihnen auch gefallen
Was für ein schönes Haus!
Haus sucht Familie
64653 Lorsch













































































