Bad Dürkheim:
Büro- oder Praxisräume in einem historische Gebäude zu vermieten
Objekt-Nr.: 525


im historischen Gebäude

stilvolle Holztreppe

helles Treppenhaus

Eingang vom Hof

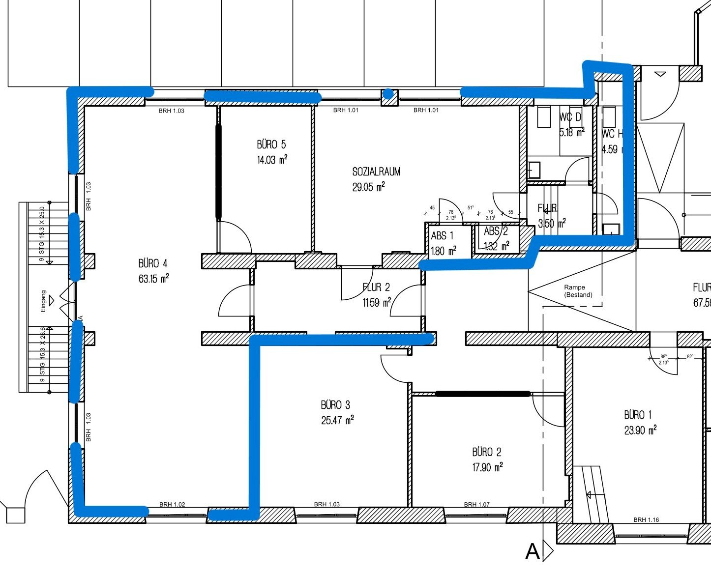
Grundriss






Mietpreis zzgl. NK:
16,40 € pro m²
Büro-/Praxisfläche ca.:
134,21 m²
Attraktive Büro-/Praxis in der revitalisierten "Alten Post" in Bad Dürkheim zu vermieten
Die historische "Alte Post" in Bad Dürkheim erstrahlt nach umfassender Sanierung in neuem Glanz. Der aufwendig revitalisierte Gebäudekomplex vereint modernen Komfort mit historischem Charme und bietet optimale Voraussetzungen für Gewerbenutzungen in zentraler Lage.
Der Umbau des historischen Gebäudes mit insgesamt 1.807 m² Wohn- und Gewerbefläche wurde im Jahr 2019 durch die Siebert Projektentwicklung erfolgreich abgeschlossen. Entstanden ist ein lebendiges Nutzungskonzept mit mehreren Arztpraxen, drei hochwertigen Wohneinheiten im Dachgeschoss sowie zwei modernen Gewerbeeinheiten im neu errichteten Anbau.
Zur Vermietung steht aktuell eine flexible Büro-/Praxisfläche (derzeit Postbank - nach Absprache evtl. auch teilbar) mit vielseitigen Nutzungsmöglichkeiten – ideal für Steuerberater, Rechtsanwälte, Architekten sowie Arztpraxen. Die Immobilie überzeugt nicht nur durch ihre repräsentative Architektur, sondern auch durch die zentrale Lage im Herzen von Bad Dürkheim sowie einem attraktivem Umfeld mit hoher Kundenfrequenz.
Highlights:
Moderne Gewerbefläche in historischem Ambiente
Repräsentativer Standort mit hoher Sichtbarkeit
Flexible Raumgestaltung nach Mieterwunsch möglich
Sehr gute Anbindung an den öffentlichen Nahverkehr
Attraktives Umfeld mit Ärzten, Wohnungen und weiteren Dienstleistern
Die hier angebotene Gewerbefläche befindet sich in zentraler Lage im Herzen von Bad Dürkheim, einer lebendigen Kurstadt am Rande der Metropolregion Rhein-Neckar. Die Immobilie liegt in unmittelbarer Nähe zur stark frequentierten Fußgängerzone und profitiert von einer hohen Passantenfrequenz – sowohl durch den lokalen Einzelhandel als auch durch den Tourismus, der ganzjährig für Laufkundschaft sorgt.…
Das direkte Umfeld ist geprägt von einem attraktiven Mix aus Einzelhandelsgeschäften, Cafés, Restaurants sowie Dienstleistern des täglichen Bedarfs. In direkter Nachbarschaft befinden sich unter anderem Filialen bekannter Marken, inhabergeführte Läden und kulturelle Einrichtungen. Die Nähe zum historischen Stadtkern und dem berühmten Dürkheimer Fass macht die Lage auch für Touristen besonders anziehend.
Durch die gute Erreichbarkeit mit öffentlichen Verkehrsmitteln sowie ausreichend Parkmöglichkeiten in der Umgebung ist die Fläche ideal angebunden. Auch die Bundesstraße B37 sowie die Nähe zur A650 sorgen für eine hervorragende regionale und überregionale Erreichbarkeit.
Letzte Modernisierung/ Sanierung: 2019
Baujahr-Gebäude: 1909
Zustand: vollsaniert
Endenergieverbrauch Wärme: 153 kWh/(m²*a)
Heizung: Zentralheizung
Energieausweistyp: Verbrauchsausweis - gültig vom 17.01.2023 bis 16.01.2033
67098 Bad Dürkheim


